Nel cuore del centro storico di Pavia, in una delle vie più rappresentative e frequentate della città, proponiamo in vendita un intero fabbricato cielo-terra di grande fascino storico e sicuro interesse patrimoniale, noto per la presenza della celebre Torre Bottigella, testimonianza architettonica del XV secolo.
Le fonti storiche censiscono l’edificio di Corso Cavour 17 come palazzo appartenuto ai fratelli Bottigella, annesso all’omonima Torre quattrocentesca che ne definisce l’identità e il prestigio.
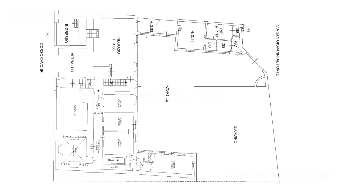
Palazzo e Torre, oggi destinati a negozi e uffici, godono di una posizione centrale e strategica nel tessuto monumentale e istituzionale della città, in prossimità sia del Tribunale di Pavia, sia del Duomo di Pavia. Un contesto che rafforza la qualità dell’investimento, la rappresentatività degli spazi e l’attrattività delle unità immobiliari.
Ulteriore elemento di pregio, oltre alla storica torre, è il cortile interno con giardino e accesso carrabile, spazio riservato e di raro fascino nel cuore della città.
La vendita riguarda l’intero fabbricato, composto da 7 unità immobiliari (per oltre 1000 mq commerciali), tutte attualmente locate: 3 negozi con 4 vetrine su strada e 4 uffici.
Si tratta quindi di un investimento a reddito immediato in un immobile di forte identità storica e di assoluta rarità sul mercato, con un rendimento lordo del 4,5%.
Gli spazi interni conservano elementi di notevole suggestione, con ambienti di rappresentanza, altezze importanti, soffitti decorati, dettagli storici e affacci che valorizzano ulteriormente il carattere esclusivo dell’immobile.
Oltre al pregio storico e alla centralità della posizione, il compendio presenta anche significativi vantaggi fiscali connessi al vincolo storico-artistico.
Per i fabbricati di interesse storico o artistico soggetti a vincolo diretto, la disciplina fiscale prevede infatti la riduzione della base imponibile IMU ed un trattamento fiscale agevolato ai fini della determinazione dell’imponibile delle locazioni, profilo di particolare interesse per investitori patrimoniali e income-oriented.
Tali aspetti andranno naturalmente verificati con il proprio consulente fiscale in relazione al soggetto acquirente e al regime applicabile.
Una soluzione rara, rivolta a investitori, family office e patrimoni privati alla ricerca di un asset iconico, già a reddito, nel centro storico di una città universitaria e monumentale come Pavia.